Property Price
$499,900
Rooms
7
Bedrooms
3
Bathrooms
2
Tax Annual Amount
$10855
Roof (*text)
Asphalt
Lot Size Area
0.3953
MLS Status
Active
MLS #
2614295R
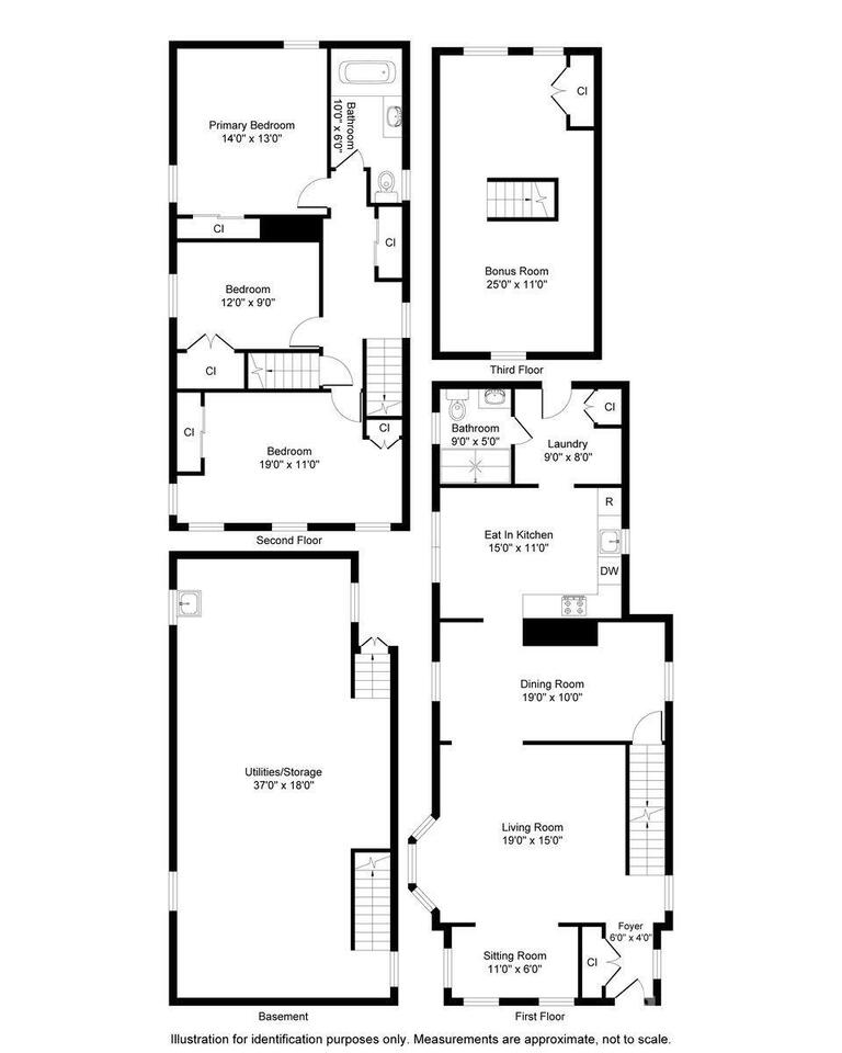
This is a Coming Soon - Showings Start 4/23! Welcome to 225 Freeman Street in Woodbridge-offered for the first time in approximately 40 years! This longtime family home presents a rare opportunity for buyers looking to bring their vision and make it their own. Featuring 3 bedrooms and 2 full baths, the home offers a functional layout with great potential. The main level includes a formal dining room--perfect for entertaining--and an eat-in kitchen with space for everyday dining. Upstairs, you'll find 3 generously sized bedrooms and a full bath. There is also an attic which can be used as a home office or playroom. Outside you have a uniquely large property with long driveway which can hold many cars and park like yard with newer above ground pool. Come take a look today!
Roofing (*text)
Asphalt
Days On Market
4
AssociationFee
0
AssociationFee2
0
CarportSpaces
0
GarageSpaces
0
Lot Size Dimensions
205.00 x 85.00
Data import from
CJMLS